In times of crisis, swift and reliable housing solutions are paramount. At Ai group, we present an innovative approach to emergency housing with our modules, designed to accommodate essential needs efficiently, effectively and with dignity.
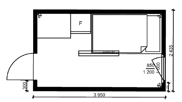
This solution is comprised of 50 pcs 13' modules tailored for comfortable living spaces. These modules offer a blend of functionality and comfort, providing occupants with a safe and secure environment during challenging times.
Technical Description – Fresh start cabin
– Module Size: 13’x8’x9'
– Steel platform with hybrid insulation system. (Ceiling: R30, Floor: R40)
– R 24 wall system
– Color by RAL design palette
– Air source heat pump
– PVC double glass window with roller
– Electrical installation, energy efficient lights, smoke detectors
– Modules can be placed on concrete blocks
Technical Description – Hygiene Facility
– Module Size: 20'x16'x9'
– Steel platform with hybrid insulation system. (Ceiling: R30, Floor: R40)
– R 24 wall system
– Color by RAL design palette
– Air source heat pump
– PVC double glass window with roller
– Electrical installation, energy efficient lights, smoke detectors, A/C, heater
– Modules can be placed on concrete blocks

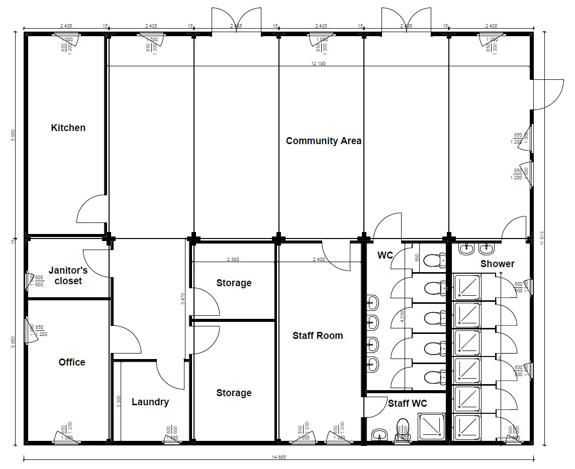
In addition to the living quarters, our solution features a central building constructed using our standard Community Facilities System (RCFS). This multifunctional structure serves as a communal hub, providing a dining area, staff accommodation, and essential amenities such as laundry facilities, storage areas, and a dedicated servery for efficient meal distribution.

Technical Description – Community building
– Building Size: 40'x48'x9'
– Module Size: 20'x8'x9'
– Steel frame with closed cell spray foam insulation
– Color by RAL design palette
– Industrial grade exterior door with window
– PVC double glass window
– Electrical installation, energy efficient lights, smoke detectors, A/C, heater
– Modules can be placed on concrete blocks

Furthermore, we understand the importance of security in emergency situations. Therefore, we offer an optional security module for placement at the entrance of the site. This module enhances safety measures and provides comfort for both occupants and administrators.

At Ai Group Ltd, we are committed to provide rapid and reliable solutions to support communities in times of crisis. Our emergency housing solutions offer versatility, efficiency, and above all, a sense of safety for those in need.
Contact us today to learn more about how our modular units can address your emergency housing requirements.
Let’s build something amazing together!
Our team is ready to help you select the right modular rental solution.
Fast delivery. Simple setup. Reliable performance.